Kispest, Simonyi Zsigmond u. 53m2 Panel

53 000 000 Ft 1000000 Ft/m2
Feladás dátuma: 2026.02.04 10:29
Tulajdonságok
Hirdetés típus
eladó
Alapterület
53
Szobák száma
Jelleg
panel
Állapot
felújítandó
Fűtés
távfűtés
Emelet
első emeleti
Kilátás
utcafront
Leírás
XIX. kerület, Simonyi Zsigmond utca Eladó panellakás

Jó elosztású 1+2 félszobás 1. emeleti panellakás eladó Kispesten, a Simonyi Zsigmond utcában, ára 53.000.000 Ft.
Az ingatlan lakható állapotú, de FELÚJITANDÓ és korszerűsítendő, így mindenki minőségi elvárásai, esztétikai igényei szerint alakíthatja.
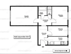
Az 53 m lakás Elosztása praktikus és jelen állapotában is kiválóan használható, három külön nyíló szobája van, ami biztosítja a magánszférát minden használójának
A lakásban van egy tágas és világos nappali, két háló, konyha, illetve fürdő és külön wc található. Az ablakokból a fény útját és a kilátást semmi nem akadályozza és reklám felületnek is használhatók.
A fűtést és a meleg vizet a távhő biztosítja., közös költsége 17.000.-forint havonta.
A lépcsőház tiszta rendes lakókkal. A Lift felújított.

Kiváló infrastruktúrával rendelkező, egyedi és remek lehetőség.
Kispest Központja, Kiváló Lakásnak, Magán Rendelőnek, Ügyvédi Irodának, Tanácsadónak, Ingatlanosnak, befektetésnek
Első emeleti, első lakószinti, - áramszünet vagy liftmeghibásodás nem érinti!
BEVÁSÁRLÁSI LEHETŐSÉGEK
szemben a Kispesti Piac, a Spar, a Skála áruház, a Lidl - sok féle boltok, üzletek könnyen elérhetők.

KÖZLEKEDÉS
kar nyújtásnyira a villamos és számtalan irányba közlekedő buszmegállók, a 3 METRÓ és a KÖKI bevásárló központ, OBI pár percnyire. A Parkolás ingyenes.

INTÉZMÉNYEK
Az utcában Magyar - Spanyol nyelvű Gimnázium és Uszoda.
2 sarokra Trefort műszaki szakgimnázium és a kerületi Bíróság.
A közelben Iskola, Óvoda, Játszóterek, Sportolási lehetőségek. Bank, Biztosító, Éttermek, Pizzériák

Hívjon bizalommal!
Közvetítők, ingatlanosok kérem ne keressenek.

Hirdetés azonosító: 1770197681

Szabálytalan hirdetés?
Ajánlat küldése

Hirdetések, melyek érdekelhetnek

Üzenet küldese
Fennmaradt karakterek: 3000