XX. kertes házas övezetében 100 nm-es családi ház, nagy garázzsal és melléképülettel eladó

89 000 000 Ft 890000 Ft/m2
Feladás dátuma: 2026.03.16 12:06
Tulajdonságok
Hirdetés típus
eladó
Alapterület
100
Szobák száma
Jelleg
családi
Állapot
közepes állapotú
Fűtés
gáz kazán
Utca, hsz
Komárom utca
Extrák
garázs, kert, kocsibeálló
Leírás
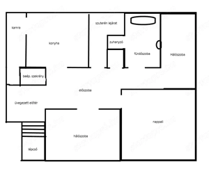
XX. kertes házas övezetében 100 nm-es családi ház eladó. A házba belépve tágas előszobába hallba érkezünk. Innen nyílnak külön a nagy ablakos, világos helyiségek; a három szoba, a fürdőszoba, melyben kád és zuhanyzó is található, a toalett és a konyha. A konyhából nyíló spejz rengeteg konyhai eszköz és finomság tárolására nyújt lehetőséget. A tágas, több autó beállására alkalmas garázs a lakásból is megközelíthető.
A fűtésről gázkazán és vegyes tüzelésű kazán gondoskodhat ill. hűtő-fűtő légkondi is beszerelésre került, amely a nyári hőségben is kellemes hőmérsékletet biztosít.
Az udvar hátsó részében egy 68 nm-es melléképület áll rendelkezésre.
A 360 nm-es telken épült - akár ráépítéssel bővíthető - családi ház fekvésének köszönhetően kiváló adottságokkal is rendelkezik; bevásárlási lehetőségek, posta, gyógyszertár, iskolák, óvodák, buszmegállók, stb. rövid sétával elérhetőek.
Ez az ingatlan kiváló választás mindenkinek, aki kényelmes, nyugodt otthonát keresi csendes, rendezett környezetben.
Késő délután és hétvégén is várom az érdeklődést.

Hirdetés azonosító: 1773185162

Szabálytalan hirdetés?
Ajánlat küldése

Hirdetések, melyek érdekelhetnek

Üzenet küldese
Fennmaradt karakterek: 3000