Keresés mentése Hirdetésfeladás
Szeretnél böngésző értesítéseket kapni a következő esetekben?

Sunt interesat de aceasta
proprietate intre datele

Hirdetés megosztása

Küldés

Sobor - teljeskörűen felújított ház eladó

39 990 000 Ft 499875 Ft/m2
Feladás dátuma: 2025.10.21 09:17
Tulajdonságok
Hirdetés típus
eladó
Alapterület
80
Szobák száma
Jelleg
családi
Állapot
felújított
Fűtés
elektromos
Extrák
garázs, kert
Leírás
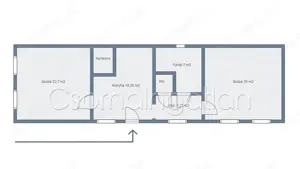
Soboron 80 m2-es 2025-ben teljeskörűen felújított családi ház eladó.

HELYISÉGEK
- 2 külön bejáratú szoba
- konyha
- fürdőben zuhanyzó, külön helyiségben a toalett
- közlekedő

FELÚJÍTÁS SORÁN
- új lemezcserép és ereszcsatorna
- új burkolatok
- új toalett és fürdőszoba
- új konyhabútor

MŰSZAKI JELLEMZŐK
- vegyes falazat
- műanyag nyílászárók
- hűtő- fűtő klíma
- meleg víz villanybojler által

MELLÉKÉPÜLETEK
- garázs
- tároló

TELEK
- 1852 m2
- ásott kút
- murvás kocsibeálló

FONTOS LEHET
- tehermentes
- egy tulajdonos
- azonnal birtokba vehető

SOBOR
A kb. 250 fős csendes, természetközeli település a Rába partján, Téttől 21 km-re , Csornától 23 km-re fekszik.
- falusi CSOK a településen igényelhető
- Audis buszjárat közlekedik

Hirdetés azonosító: 1751287572

Szabálytalan hirdetés?
Ajánlat küldése

Hirdetések, melyek érdekelhetnek

Üzenet küldese
Fennmaradt karakterek: 3000