Keresés mentése Hirdetésfeladás
Szeretnél böngésző értesítéseket kapni a következő esetekben?

Sunt interesat de aceasta
proprietate intre datele

Hirdetés megosztása

Küldés

Sámson-kertben új iker ház eladó

71 000 000 Ft 612069 Ft/m2
Feladás dátuma: 2025.12.10 21:24
Tulajdonságok
Hirdetés típus
eladó
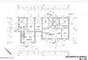
Alapterület
116
Szobák száma
Jelleg
családi
Állapot
most épülő
Fűtés
egyéb
Leírás
Debrecen táblától 5 km-re, Sámson-kertben, központhoz közel új építésű iker családi ház épül!

Jellemzők:
- nappali+4 szoba
- háztartási helyiség
- gardrób
- 116 nm+16,25 nm terasz és +16,5 nm garázs
- nagy előszoba
- ablakos, nagy fürdő szoba
- külön wc
- 2 szintes
- nincs közvetlen falkapcsolat
- telek cca 350 nm. Ára: 8 M.
- hőszivattyús fűtés, de a gáz is opció

Lábazat: antracit lábazati gyöngyvakolat.
Homlokzat: hőszigetelő rendszer tört fehér színű nemes vakolattal.
Nyílászárók: 7 légkamrás, műanyag nyílászárók, fehér színben, 3 rtg-ű hőszigetelt üvegezéssel és fehér szekcionált garázskapu.
Tetőhéjazat: beton cserépfedés antracit színben.
Párkányok: csiszolt fagyálló kő ablakpárkány.
Kémény: szerelt légbeszívó füstcső antracit színben

Az ingatlan, kertvárosias lakóövezetben helyezkedik el. Az építési telek síknak mondható.
A tervezett lakóépület nem akadályozza a szomszédos ingatlanok és építmények, önálló rendeltetési egységek rendeltetésszerű és biztonságos használhatóságát.

Méreteivel, elhelyezésével, építészeti kialakításával illeszkedik a környezet és a környező beépítés adottságaihoz.
Az építmény elhelyezési módja, beépítési magassága, homlokzata, tetőzete és azok kialakítása lehetővé teszi a településkép és a környezet előnyösebb kialakítását, a táj és településkép értékeinek érvényesülését. Építészeti megoldásával hozzájárul a táj- és a településkép esztétikus alakításához.

Közművek: a telek gáz és elektromos árammal az utcai közüzemi hálózatokról ellátható. A vízellátás házi vízművel lesz biztosítva. A szennyvíz zárt szennyvíztárolóba lesz vezetve.

Tervezett átadás, a szerződéskötéstől számítva: 10-12 hónap
Ütemezett fizetési lehetőség!

Ingyenes hitel ügyintést vállaljuk!

Helyszín megtekintéssel kapcsolatban keressen bizalommal, akár hétvégén is!
Babavárót, Csok-ot, hitelt intézzük!

Ár: 71.000.000.- Ft.+ 8.000.000.- Ft. a telek.

Érd: 06-30-9358-700

Hirdetés azonosító: 1761152156

Szabálytalan hirdetés?
Ajánlat küldése

Hirdetések, melyek érdekelhetnek

Üzenet küldese
Fennmaradt karakterek: 3000
🎄 2025 legnagyobb és utolsó kedvezménye 🎄
Az ajánlat csak korlátozott ideig érvényes!