Rábatamási 2 szobás családi ház eladó

41 000 000 Ft 455556 Ft/m2
Feladás dátuma: 2026.03.16 16:49
Tulajdonságok
Hirdetés típus
eladó
Alapterület
90
Szobák száma
Jelleg
családi
Állapot
jó állapotú
Fűtés
házközponti
Extrák
garázs, kert, terasz
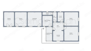
Leírás
90 m2-es magasföldszintes családi ház 1439 m2-es telken eladó

HELYISÉGEK:
- 2 szoba
- konyha étkezővel
- fürdőben kád, külön helyiségben a toalett
- tároló
- közlekedő
- nyári konyha
- fedett terasz

MŰSZAKI JELLEMZŐK:
- magasföldszintes téglaház
- új közművezetékek
- álmennyezet
- fűtés vegyes központi kazánnal
- meleg víz villanybojler által
- klíma
- ipari áram
- gázcsonk az utcában

MELLÉKÉPÜLETEK:
- kazánház
- műhely
- garázs

TELEK:
- 1439 m2-es
- ásott kút

FONTOS LEHET:
- egy tulajdonos
- tehermentes

RÁBATAMÁSI
A kb. 940 fős település Csornától 8 km-re, Kapuvártól 12 km-re fekszik
- a 85-ös főút és a Győr Sopron vasútvonal mellett
- óvoda és általános iskola
- posta, bolt helyben megtalálható
- falusi CSOK a településen igényelhető

Hirdetés azonosító: 1773676866

Szabálytalan hirdetés?
Ajánlat küldése

Hirdetések, melyek érdekelhetnek

Üzenet küldese
Fennmaradt karakterek: 3000