Eladó Bp.,16.ker.Sashalmon tágas,napfényes, 5 szobás családi otthon, saját garázzsal,kertrésszel

137 000 000 Ft 1330097 Ft/m2
Feladás dátuma: 2026.03.22 19:54
Tulajdonságok
Hirdetés típus
eladó
Alapterület
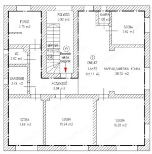
103
Szobák száma
Jelleg
ikerházi
Állapot
jó állapotú
Fűtés
gáz cirkó
Leírás
Magánszemélytől eladó Budapest 16. kerületében Sashalmon, kertvárosi környezetben, nyugodt csendes utcában, tehermentes, 103 m2-es, amerikai konyhás nappali + 4 szobás, világos, tágas lakás (házrész).
A lakáshoz tartozik saját használatú 199 m2-es kertrész, a kertben 20 m2-es garázs, szaletli, kerti tároló, plusz egy térkövezett kocsibeálló, valamint 7 m2-es pince.
Ára: 137 millió Ft

Főbb jellemzők:
-tágas amerikai konyhás 28,75 m2-es nappali, beépített Zanussi indukciós főzőlappal és elektromos sütővel, a konyha mellett kamra
-4 különnyíló szoba méretek: 16,28; 15,94; 11,68 és 7.92 m2-es (mind laminált parkettás)
-a szobákban és a fürdőszobában redőny és szúnyoghálós ablakok
-gardrób beépített gardróbszekrénnyel
-zuhanyzós fürdőszoba wc-vel
-külön wc kézmosóval
-klíma
-biztonsági bejárati ajtó
-Ariston gázkazán biztosítja a melegvizet fürdéshez és fűtéshez (minden helyiségben lapradiátorok)
-közművek egyedi mérőórákkal (kertben locsolási mérő)
-2 lakásos tégla építésű, szigetelt, körbenapozott családi ház első emelete (felső szintje, de nem tetőtér)
-a lapostető 2020 őszén lett felújítva, szigetelve
-saját használatú 199 m2-es rendezett kertrész, termő szederbokorral
-sétatávra: Spar, óvoda, iskola
-közlekedés: 45-ös autóbusszal 10 perc az Örs vezér tere, pár perc sétatávra Sashalom HÉV megálló, továbbá a 44-es, 46-os és 92-es buszok, 908-as éjszakai járat
-közelben: járóbeteg szakrendelő, Rossmann, gyógyszertár, zöldséges, pékség, posta, Lidl, cukrászda

Érdeklődni e-mailben, vagy privát messenger üzenetben, illetve telefonon lehetséges:
telefonszám: 70 638-1177
e-mail:

Hirdetés azonosító: 1774206257

Szabálytalan hirdetés?
Ajánlat küldése

Hirdetések, melyek érdekelhetnek

Üzenet küldese
Fennmaradt karakterek: 3000