Keresés mentése Hirdetésfeladás
Szeretnél böngésző értesítéseket kapni a következő esetekben?

Sunt interesat de aceasta
proprietate intre datele

Hirdetés megosztása

Küldés

Debrecen táblától 5 km-re kínálok egy új iker családi házat.

55 000 000 Ft 514019 Ft/m2
Feladás dátuma: 2025.12.11 10:59
Tulajdonságok
Hirdetés típus
eladó
Alapterület
107
Szobák száma
Jelleg
ikerházi
Állapot
most épülő
Fűtés
gáz kazán
Leírás
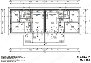
Sámson-kert iker családi ház építését kezdjük meg!

A két ingatlan között dupla fal kapcsolat van!

A telek ára: 10 millió forint!

Családalapítóknak, gyermekeseknek egyaránt tökéletes!

A nettó 107 77 nm-es, nappali +2 szobás, (18,7 nm terasz, ) ingatlant téglából épül, 30 cm mennyezeti szigeteléssel, 10 cm ajzat szigeteléssel, a műanyag nyílászárók 3 rétegű, 1K üvegezéssel készülnek, és kerülnek beépítésre, a tető beton cserépfedéssel.

Fűtése: kondenzációs gáz kazánról lesz!

Szobákban radiátorral, (padlófűtés is kérhető felár nélkül) egyéb helyiségekben padlófűtéssel!
Burkolat (csempe, járólap, parketta) választási lehetőség lesz!

A víz ellátás, házi vízművel, a fűtés gázkazánnal megoldott!
Hideg burkolat: 7.000.- nm áron!
Meleg burkolat: 4.500.- nm áron!

Inverteres klíma!

Tervezett átadás, a szerződéskötéstől számítva: 1 ÉV
Ütemezett fizetési lehetőség!
Ingyenes hitel ügyintést vállaljuk!
Referencia munkát tudunk mutatni!
Helyszín megtekintéssel kapcsolatban keressen bizalommal, akár hétvégén is!

Babavárót, Csok-ot, hitelt intézzük!

Ár: 55+10M.

Érd: 06-30-9358-700

Hirdetés azonosító: 1761152141

Szabálytalan hirdetés?
Ajánlat küldése

Hirdetések, melyek érdekelhetnek

Üzenet küldese
Fennmaradt karakterek: 3000