Csorna - 1127 m2-es telken bontandó ház eladó
20 000 000
Ft
400000 Ft/m2
Feladás dátuma: 2026.04.14 11:52
1 / 10
Tulajdonságok
Hirdetés típus
eladó
Alapterület
50
Szobák száma
Jelleg
családi
Állapot
felújítandó
Fűtés
egyéb
Extrák
kert
Leírás
Csendes utcában kis tégla családi ház 1127 m2-es gyümölcsfás telken eladó.
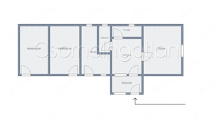
HELYISÉGEK:
- hálószoba
- konyha
- kamra
- fürdő
- előszoba
MŰSZAKI JELLEMZŐK:
- téglaház, mely felújítandó, vagy bontandó állapotban van
- házba víz és villany bevezetve
- cserép tetőfedés
- fűtés cserépkályha és kályha által
- meleg víz villanybojler által
TELEK:
- melléképületek
- kút
- egy része gyümölcsfákkal van beültetve
- körbekerített
- parkolás az udvaron lehetséges
FONTOS LEHET:
- tehermentes
- azonnal birtokba vehető
CSORNA
A kb. 10.000 fős város az M85-ös gyorsforgalmi út által 30 perc alatt elérhető Győrből, illetve vasútvonalon is.
- bölcsőde, óvodák
- általános iskolák (római katolikus, művészeti, speciális, önkormányzati)
- gimnázium, szakközép iskolák
- Margit Kórház
- termálfürdő
- áruházláncok, boltok stb. helyben megtalálhatóak
Szabálytalan hirdetés?
HELYISÉGEK:
- hálószoba
- konyha
- kamra
- fürdő
- előszoba
MŰSZAKI JELLEMZŐK:
- téglaház, mely felújítandó, vagy bontandó állapotban van
- házba víz és villany bevezetve
- cserép tetőfedés
- fűtés cserépkályha és kályha által
- meleg víz villanybojler által
TELEK:
- melléképületek
- kút
- egy része gyümölcsfákkal van beültetve
- körbekerített
- parkolás az udvaron lehetséges
FONTOS LEHET:
- tehermentes
- azonnal birtokba vehető
CSORNA
A kb. 10.000 fős város az M85-ös gyorsforgalmi út által 30 perc alatt elérhető Győrből, illetve vasútvonalon is.
- bölcsőde, óvodák
- általános iskolák (római katolikus, művészeti, speciális, önkormányzati)
- gimnázium, szakközép iskolák
- Margit Kórház
- termálfürdő
- áruházláncok, boltok stb. helyben megtalálhatóak
Hirdetés azonosító: 1776160855
Ajánlat küldése
Hirdetések, melyek érdekelhetnek
A hirdetővel való kapcsolatfelvételhez lépj be startapró.hu fiókodba vagy regisztrálj gyorsan most!