Keresés mentése Hirdetésfeladás
Szeretnél böngésző értesítéseket kapni a következő esetekben?

Sunt interesat de aceasta
proprietate intre datele

Hirdetés megosztása

Küldés

Beled - részben közművesített telek eladó

12 900 000 Ft 11967 Ft/m2
Feladás dátuma: 2026.01.08 11:25
Tulajdonságok
Hirdetés típus
eladó
Alapterület
1078
Extrák
csatornázott, villany, víz
Leírás
Beleden 1078 m2-es részben közművesített építési telek eladó.

KÖZMŰVEK A TELKEN:
- víz
- csatorna
- villany (3 fázis is)
- kút

UTCÁBAN:
- gázvezeték

EGYÉB LEHETŐSÉG:
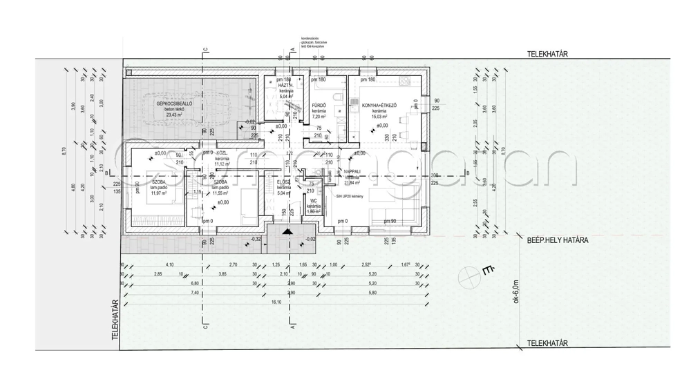
- 90 m2-es 3 szobás lakóház tervrajza

TELEK:
- 16 méter széles telek
- körbekerített

KÖRNYÉK:
- rendezett, csendes utca
- térkövezett járda

BELED
A kb. 2640 fős Kis-Rába menti kisváros az M86-os gyorsforgalmi út lehajtójánál fekszik, vasútállomás is található a településen.
- bölcsőde, óvoda, általános iskola
- házi- és gyermekorvosi rendelő, fogászati és állatorvosi szolgálat, gyógyszertár
- boltok, posta stb. helyben megtalálhatóak
- falusi CSOK a településen igényelhető

Hirdetés azonosító: 1767868384

Szabálytalan hirdetés?
Ajánlat küldése

Hirdetések, melyek érdekelhetnek

Üzenet küldese
Fennmaradt karakterek: 3000